FLADAFI® Materialcontainer MC 1460 verzinkt mit 1-flügeliger Tür, ohne Boden
Lieferung frei Haus
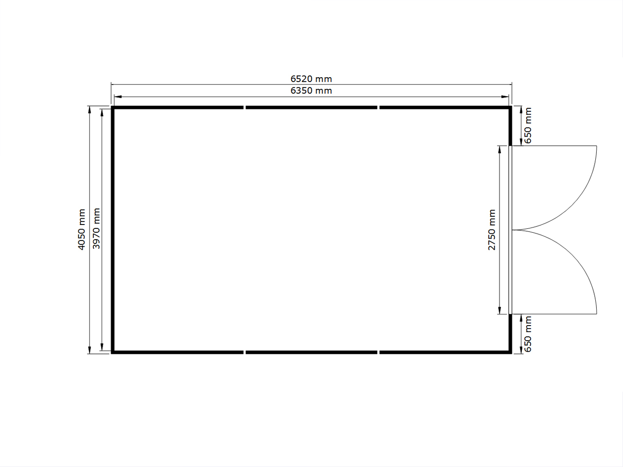
Einflügeltür auf der 6 m Seite
Türmaß: 1.320 x 1.930 mm, Durchgangsgröße: 1.270 x 1.890 mm
Außenmaß BxTxH: 4.050 x 6.520 x 2.115 mm
Innenmaß BxTxH: 3.970 x 6.350 x 2.080 mm
Packmaß: 4.050 x 2.200 x 850 mm
Durchgangshöhe im Stoßbereich der Module: 1975 mm
Eigengewicht: ca. 1.000 kg
(zerlegte Anlieferung - enfache Selbstmontage in kürzester Zeit ohne Spezialwerkzeug)
Technische Beschreibung:
-Außenmaße ohne Berücksichtigung von Anbauten
-Innenmaße ohne Berücksichtigung von Einbauten
-Wand: sendzimirverzinktes vertikales Trapezblech
-Dach: sendzimirverzinktes Trapezblech mit integrierten Regenrinnen
an der Längsseite
-Tür: sendzimirverzinktes vertikales Trapezblech mit Profilzylinder,
Schloss und Drückergarnitur
verzinkte Scharniere am Türblatt angeschweißt
Türanschlag DIN rechts
Einsatzgebiet:
- überall dort, wo Materialien ordnungsgemäß und diebstahlbeschützt gelagert werden müssen
Aufstellort:
- Innen- und Außenaufstellung
- zur Aufstellung von Containern wird eine tragfähige und befestigte Standfläche benötigt.
Auf unbefestigten Flächen, sowie zur Vermeidung von Staunässe, kann ein einfaches
Fundament aus Gehwegplatten erstellt werden. Den dazugehörigen Fundamentplan
stellen wir Ihnen gerne kostenlos zur Verfügung.
Statische Grundlagen:
- prüffähige, ortsgebundene Statik nach Eurocode auf den Berechnungsgrundlagen
DIN EN 1990 + NA 2010 (Grundlagen Tragwerksplanung)
DIN EN 1991 Teil 1-1,1-3,1-4 + NA 2010 (Einwirkung auf Tragwerke),
DIN EN 1993 Teil 1-1, 1-3, 1-8 + NA 2010 (Bemessung von Stahlbauten)
- Dachbelastung bei verteilter Last: 110 kg/m²
(der Betreiber muss höhere Lasten verhindern)
- Windlast 0,59 kN/m² (entspricht Windlastzone 2) standortbezogen, gem. Eurocode 3
Zertifikate:
- Gütesiegel Sicher mit System der Berufsgenossenschaft
- DIN ISO 9001 Zertifizierung
- CE-Kennzeichen
Kundenseitige Leistungen:
- erstellen der Fundamente
das Fundament muss in der Lage sein, die anfallenden Lasten aufzunehmen,
Tragfähigkeit, Gebrauchstauglichkeit und Dauerhaftigkeit gem. DIN EN 206
- Aufstellung, Ausrichtung und Verankerung
- Erdungsanschluss
- prüfen, ob eine statische Anpassung an die Örtlichkeit erforderlich ist
(sollte dies erforderlich sein, sprechen Sie mit unseren Fachberatern,
die Ihnen gerne weiterhelfen).
| Hersteller: | SÄBU |
|---|---|
| Lagerfläche (m²): | 25.2000 |
| Hersteller-Artikelnr: | 14630101 |
| Innenmaße (BxTxH): | 3970 x 6350 x 2000 mm |
| Außenmaße (BxTxH): | 4050 x 6520 x 2115 mm |
| Anzahl Lagerebenen: | 1 |
Gerne sind wir Ihnen bei der Planung und Auswahl der passenden Produkte behilflich. Kontaktieren Sie uns für eine kostenlose Beratung.
Auffangwannen Kunststoff
Auffangwannen PE
Auffangwannen GFK
Auffangwannen Stahl
Auffangwannen Stahl mit Gitterrost
Auffangwannen Edelstahl
Auffangwannen IBC
Auffangwannen 1000 Liter
Kleingebindewannen
Brandschutzschränke
Gefahrstoffschränke F90
Gefahrstoffschränke F30
Sicherheitsschränke für Lithium-Batterien
Akku-Brandschutzboxen
Gasflaschenschränke
Feuerfeste Aktenschränke
Umweltschränke
Chemikalienschränke
Giftschränke
Säuren- und Laugenschränke
Sicherheitsschränke zur aktiven Lagerung
Gasflaschenlager
Gasflaschendepots
Gefahrstoffcontainer
Brandschutzcontainer
Regalcontainer
Lager für Peroxide
Lagercontainer
Technikräume
Bindemittel Öl
Ölbindevlies
Bindemittel Universal
Bindemittel Chemikalien
Bindemittel Gewässer
Dieselpumpen
Fasspumpen
Pumpen für Schmierstoffe
Pumpen für Chemikalien
Adblue® Pumpen
Dieseltankanlagen
Benzintankanlagen
Tanksysteme für Schmierstoffe
Altölsammelbehälter
Sammelbehälter
Transportboxen
Gefahrstoffsammler
Sicherheitsbehälter
Fasshandling
Fasskarren
Fasskipper
Fasstraversen
Fassheber
Sicherheitszubehör
Erste Hilfe
Notfallausstattung
Feuerlöscher von Gloria©